The Sun City Minh Sơn
Thị trường bất động sản với phân khúc đất nền hiện đang nhộn nhịp hơn hẳn so với thời gian trước. Trong đó dự án The Sun City Minh Sơn hiện đang nhận được sự quan tâm đặc biệt của khách hàng và nhà đầu tư.
Dự án chính thức được mở bán từ đầu tháng 8 sắp tới. Những yếu tố nào giúp cho dự án nhận được sự quan tâm của khách hàng đến vậy? Trong khuôn khổ bài viết này sẽ mang lại cho khách hàng những thông tin chi tiết về dự án và những ưu điểm mà dự án sở hữu.

QUY MÔ DỰ ÁN ĐẤT NỀN THE SUN CITY MINH SƠN QUẬN 9
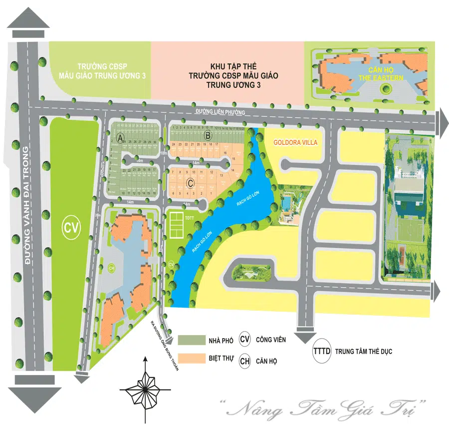
– Tổng diện tích: 13 ha dự án Goldora villa hơn 8,2ha, còn lại Dự Án The sun City Minh Sơn khoảng 4,8ha
– Cơ sở hạ tầng: hoàn thiện, điện âm, nước âm, công viên cây xanh….. bàn giao nền ngay
– Pháp Lý The Sun City: Đã được quy hoạch 1/500 và có sổ đỏ chung toàn khu. KH mua là Cty ký HĐ chuyển nhượng ngay và tách sổ riêng từng lô trong vòng 45 ngày
– Loại hình sở hữu: Sở hữu ổn định lâu dài
Tổng số nền: 24 nền biệt thự + 64 nền nhà phố
Diện tích: 120 – 575 m2
Nhà liên kế phố:
– 3 tầng (trệt + 2 lầu + ST + mái)
– Diện tích đất từ 120 – 214 m2
Biệt thự đơn lập:
– 2 tầng (trệt + lầu + ST + mái);
– Diện tích đất từ 333 – 575 m2
– Diện tích sàn xây dựng: 465 – 700 m2
Biệt thự song lập:
– 2 tầng (trệt + lầu + ST + mái);
– Diện tích từ 195 – 324 m2
– Diện tích sàn xây dựng: 350 – 366 m2

Vị trí tọa lạc The Sun City Minh Sơn

The Sun City Minh Sơn là một dự án có vị trí tọa lạc tại 2 góc đường Liên Phường và đường Vành Đai Trong. Ngoài hai tuyến đường đó thì dự án còn rất gần tuyến đường trọng điểm quốc gia là đường cao tốc Hồ Chí Minh – Long Thành – Dầu Giây. Đây là tuyến đường quan trọng của thành phố Hồ Chí Minh giúp giảm tải lưu lượng Bắc – Nam qua thành phố Biên Hòa, giúp kết nối thẳng về Đại Lộ Đông Tây qua hầm Thủ Thiêm.
Mật độ xây dựng The Sun City Minh Sơn
Ngoài việc có vị trí tọa lạc tại 2 tuyến đường quan trọng của thành phố thì dự án The Sun City Minh Sơn còn được quy hoạch rất tốt và bài bản. Mật độ xây dựng của dự án chỉ 37%. Đây là một con số rất thấp với 1 dự án đất. Hiện nay, cơ sở hạ tầng cơ bản của dự án đã hoàn thiện 100%.

Các tuyến đường trọng điểm sắp hoàn thành trong thời gian tới sẽ giúp cư dân tại đây di chuyển nhanh chóng tới các khu vực lân cận và trung tâm. Bởi vậy, khách hàng có xu hướng chuyển dịch ra khu vực này để an cư nhiều hơn.
Tính pháp lý của dự án The Sun City Minh Sơn
Dự án The Sun City Minh Sơn tại quận 9 đã đóng toàn bộ thuế tiền sử dụng đất cho toàn bộ dự án. Đây là một điều kiện tiên quyết và cần thiết nhất để chủ đầu tư có thể làm sổ đỏ cho khách hàng.

Cơ hội đầu tư tại The Sun City Minh Sơn
Khu vực dự án này hiện nay cư dân về sinh sống vẫn còn ít vì dự án vừa mới được hoàn thành. Sẽ phải mất khoảng 2 – 3 năm để có thể hình thành khu dân cư đông đúc.
Tuy nhiên, chính nhờ điều này mà các nhà đầu tư đã nhìn thấy một cơ hội đầu tư ổn định, hấp dẫn vì khi dự án đã đi vào quỹ đạo ổn định sẽ làm giảm sức bật của dự án giảm đi, khiến giá cả bị chững lại.

