Được xây dựng bởi tập đoàn Vingroup, căn hộ The Central 3 đạt chuẩn 5 sao,là tòa căn hộ cao cấp có chiều cao 47 tầng, có tất cả 525 căn hộ và căn hộ thương mại officetel chưa bao gồm penthouse.
Nhà mẫu tại Vinhomes Central Park đã được hoàn thiện vào tháng 11- 2014 được mở cửa đón khách tham quan . Căn hộ mang những hiện đại và tiện nghi bậc nhất ven sông Sài Gòn hứa hẹn sẽ mang đến cuộc sống ngập tràn những luồng gió mát.

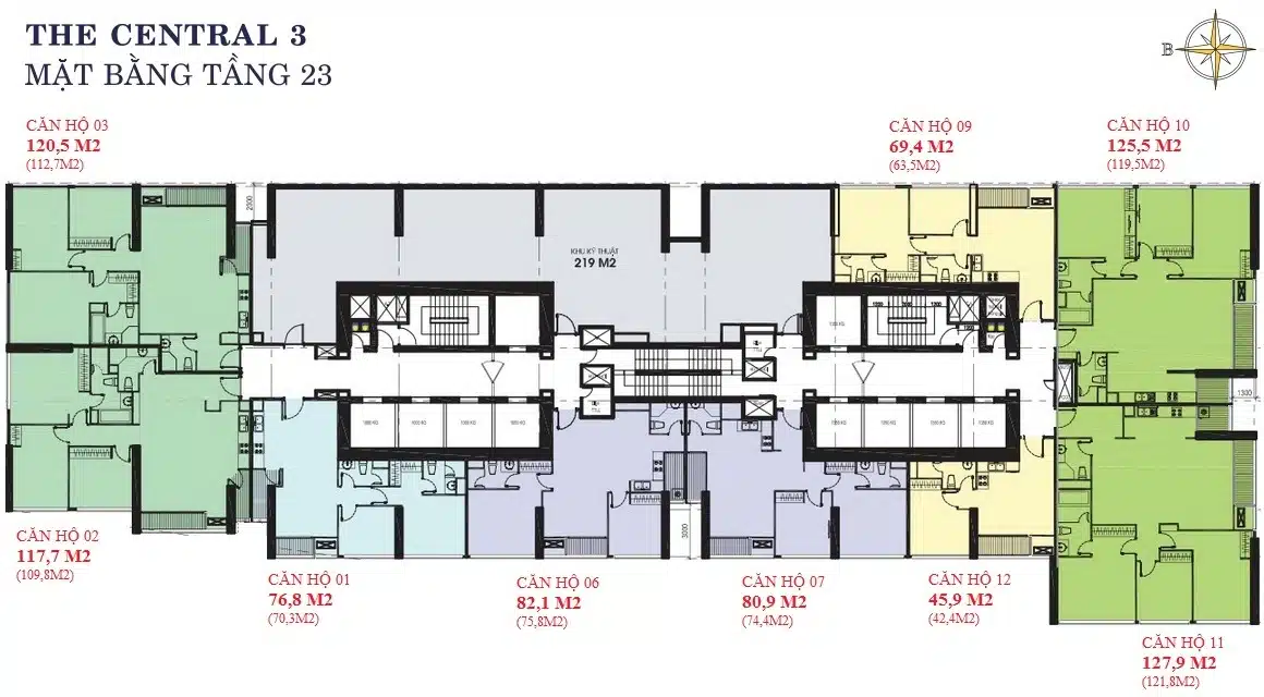
Quy mô tòa căn hộ The Central 3 Vinhomes Central Park
- Số căn hộ: 525 căn hộ và căn hộ thương mại officetel (chưa bao gồm penthouse).
- Số tầng: 47 tầng.
- Vị trí: Nằm Gần trường học liên cấp Vinschool, một mặt hướng về thành phố (Q.1 và Q.3), một mặt hướng ra sông Sài Gòn.
- Số lượng thang: 10 thang máy và 3 thang bộ.
- Tòa nhà chia làm 2 đơn nguyên với tổng số 12 căn hộ/sàn.
- Chiều rộng hành lang sảnh thang máy: 2,5 m

Những tiện ích mà cư dân nhận được khi sống tại The Central 3:
- Hồ bơi ngoài trời với hệ thống nước sạch được thay thế liên tục, bài trí sang trọng, đẹp mắt mang đến không gian thư giãn không khác bất cứ một khu nghỉ dưỡng nào.
- Hệ thống trường học liên cấp Vinschool
- 2 hầm để xe rộng rãi
- Lounge
- Khu vực lễ tân và sảnh chờ với đội ngũ nhân viên phục vụ 24/7
- Hệ thống camera 24/7
- Hệ thống báo khói, báo cháy,đầu phun chữa cháy tự động tại hành lang và các tầng căn hộ.
Tòa nhà The Central 3 là 1 trong những tòa căn hộ nắm giữ vị trí đẹp nhất dự án Vinhomes Central Park, nằm ở vị trí gần trường học với một mặt hướng ra sông Sài Gòn, một mặt hướng về thành phố quận 1 và quận 3, mang đến một không gian ngắm cảnh và thư giãn ngay tại nhà đồng thời cũng có vị trí di chuyển khá thuận lợi vào trung tâm các thành phố.
Ngoài ra cư dân sống tại The Central 3 Vinhomes Central Parkcũng được hưởng các tiện ích trong quần thể dự án Vinhomes Central Park, những tiện ích tạo nên sự khác biệt không có dự án nào có thể so sánh được:
- Hầm để xe thông minh sử dụng thẻ từ và bảng điện tử hiện số ô còn trống cho xe vào đậu tránh mất thời gian.
- Sảnh đón khách
- Sảnh Lounge sang trọng theo tiêu chuẩn 5 sao
- Nhà sinh hoạt công cộng
- Hồ bơi ngoài trời và cây xanh ở các cụm căn hộ
- Hệ thống sân thể thao ngoài trời: sân bóng, sân tennis, sân gorl,…
- Phòng tập gym hiện đại
- An ninh và hệ thống giám sát bằng camera 24/7
- Hệ thống điện dự phòng 100% cho căn hộ và biệt thự
- Hệ thống nước sạch dự phòng
Cư dân tại Vinhomes central Park còn được hưởng các dịch vụ khác như:
- Trường liên cấp Vinschool
- Bệnh viện đa khoa quốc tế vinmec
- Bến du thuyền đẳng cấp 5 sao
- Khu vui chơi trẻ em ngoài trời
- Trung tâm thương mại với mặt hàng phong phú và sự góp mặt của những hang thời trang , mĩ phẩm,… cao cấp
- Công viên xanh rộng gần 14 ha
- Các dịch vụ chăm sóc khuôn viên, các dịch vụ phúc lợi khác,…
Trải nghiệm cuộc sống khác biệt và đẳng cấp tại The Central 3 – Vinhomes Central Park.
Hotline Phòng Kinh Doanh Dự Án Vinhomes Central Park
HOTLINE 0915.916.915
Thông Tin Chính Xác – Cập Nhật Liên Tục – Tư Vấn Chuyên Nghiệp
Tìm hiểu thêm về Tòa Central 1 và Tòa Central 2 nằm trong khu the Cemtral Vinhomes Central Park
