Merita Khang Điền
Dự án nhà phố Merita của Khang Điền có vị trí tọa lạc trên mặt tiền đường Liên Phường, gần với vòng xoay Liên Phường, thuộc Quận 9.

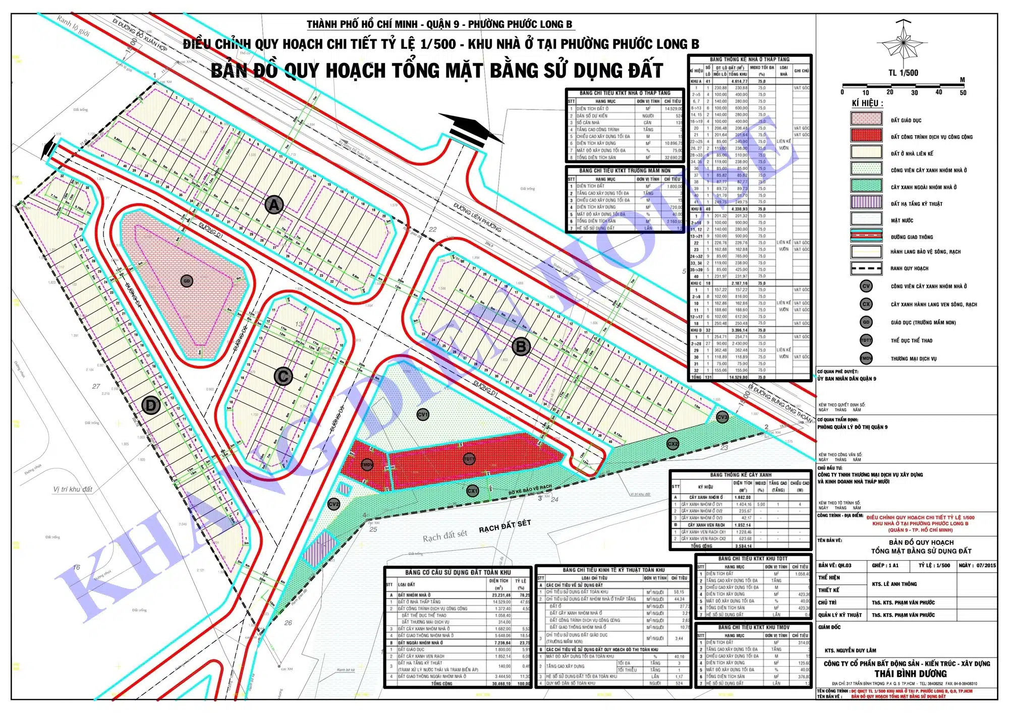
Quy Mô Dự Án Tháp Mười Merita Khang Điền
Tên Dự án: Tháp Mười Merita Khang Điền
Chủ Đầu Tư: Công ty Đầu tư và Kinh doanh nhà Tháp Mười
Quy mô: 3,1 ha bao gồm 131 căn nhà phố liên kế
Vị trí: mặt tiền đường Liên Phường, P. Phước Long B, Quận 9. HCM
Sản phẩm: Nhà phố Liên Kế diện tích : 5×16, 5×17, 5×18, 5x 20, 6×17 …
Bàn giao: 1 trệt 2 lầu, nhà thô, hoàn thiện mặt ngoài.
Tiến độ dự án: Block A và B đang xây dựng tới lầu 1 (18/9/2016)
Pháp lý: Sổ hồng, sở hữu vĩnh viễn.
Khởi công xây dựng : tháng 6/2016
Dự kiến hoàn thành và bàn giao: Năm 2017
Đường Liên Phường có gì gây sốt?
Đường Liên Phường song song với trục Xa lộ của Hà Nội, gần với cao tốc Long Thành, đường song hành cao tốc (hiện đang thi công), đường Nguyễn Duy Trinh. Đường Liên Phường cũng giao với 2 trục đường lớn khác đó là đường Vành đai 2 và đường Đỗ Xuân Hợp. Vì thế, dự án nhà phố Merita Khang Điền nằm trên mặt tiền đường Liên Phường, là nơi có thể kết nối giao thông dễ dàng nhờ các tuyến đường nói trên. Có thể ví dụ như sau:
-Từ dự án Merita Khang Điền đi về hướng quận 2, quận 1 theo lộ trình:
+ Liên Phường->Vành đai 2->cao tốc->Mai Chí Thọ
+ Liên Phường-> Đỗ Xuân Hợp->cao tốc/song hành(đang làm)->Mai Chí Thọ
+ Liên Phường->Vành đai 2->Nguyễn Duy Trinh->Nguyễn Thị Định->Mai Chí Thọ
+ Liên Phường->Đỗ Xuân Hợp->Nguyễn Duy Trinh->Nguyễn Thị Định->Mai Chí Thọ
-Từ dự án nhà phố Merita Khang Điền đi quận 9, Thủ Đức theo lộ trình sau:
+ Liên Phường->Vành đai 2->đường trục Khu công nghệ cao->Xa lộ Hà Nội
+ Liên Phường->Đỗ Xuân Hợp->Xa lộ Hà Nội
-Từ dự án nhà phố Merita Khang Điền đi quận 7, Phú Mỹ Hưng theo lộ trình sau:
+ Liên Phường->Vành đai 2->cầu Phú Mỹ.
Vậy thì tóm lại, với vị trí dự án nhà phố Merita Khang Điền đã có kết nối giao thông khá tốt. Trong tương lai thì tình hình kết nối giao thông còn được cải thiện hơn nữa khi giữa các tuyến đường được nâng cấp hoặc được hoàn thiện như đường Đỗ Xuân Hợp, Vành đai 2 khép kín, Song hành cao tốc, …

Tiện ích dự án Tháp Mười Merita có những gì ?
Tiện ích tích hợp đầy đủ đẳng cấp sẽ hoàn thiện và sẵn sàn phục vụ cư dân tại Tháp Mười Merita
+ Cafe
+ Khuôn viên cảnh quan cây xanh
+ Trung tâm thương mại
+ Hồ bơi 340m2
+ BBQ
+ Trường học 1,800m2
+ Công viên trung tâm
+ Sân chơi trẻ em 125m2
+ Siêu thị 88m2
+ Đường chạy bộ…

Như vậy lựa chọn dự án nhà phố Merita dù là để ở hay đầu tư thì Khang Điền cũng đang mang tới cho Khách hàng của mình một cơ hội lớn, không thể bỏ qua trong Quý 4 / 2016 này.
Điểm hấp dẫn xung quanh dự án Merita
Ngoài liên kết giao thông thuận tiện thì xung quanh dự án nhà phố Merita còn có gì đặc biệt? Có điều gì khiến dự án này hấp dẫn khách hàng?
– Nhắc đến quận 9 thì người ta sẽ nghĩ ngay đến Khu công nghệ cao. Và dự án nhà phố Merita Khang Điền chỉ cách Khu công nghệ cao khoảng 1.6km. Nhắc đến khu công nghệ cao là vì nơi đây là nơi tập trung nhiều cán bộ, công nhân viên. Đội ngũ cán bộ công nhân viên này chính là động lực để phát triển kinh tế. Bên cạnh đó, các tiện ích dịch vụ đi kèm cũng mọc lên nhằm mục đích phục vụ cư dân. Những tiện ích dịch vụ tiên tiến này đang thay đổi bộ mặt của khu vực xung quanh dự án nhà phố Merita.

Có thể hình dung được điều này giống như một vòng quay của bánh xe vậy: Có dân-> có tiện ích dịch vụ-> Kéo dân đến đông hơn-> sẽ nhiều tiện ích dịch vụ hơn…
– Khu vực xung quanh dự án nhà phố Merita có khá nhiều sông ngòi, kênh rạch, vì thês tạo điều kiện thuận lợi để phát triển các khu compound, nhà phố cao cấp, biệt thự. Chỉ riêng Khang Điền đã đóng góp các dự án tại khu vực này như Lucasta, Villa Park, chuỗi Mega (Mega Sapphire, Mega Ruby, Mega Village, Mega Residence), Topia Garden, Melosa Garden, Venica và mới nhất chính là dự án nhà phố Merita. Những dự án cao cấp gần nhau như vậy sẽ cộng hưởng các giá trị lẫn nhau, góp phần thúc đẩy sự phát triển của khu vực.
– Xung quanh dự án nhà phố Merita còn có nhiều tuyến đường lớn huyết mạch. Đây cũng là cơ sở để tin vào sự gia tăng giá trị của dự án Merita trong tương lai. Bạn có thể tham khảo về dữ liệu của Khu đô thị An Phú An Khánh: sau khi tuyến song hành xa lộ Hà Nội đi vào hoạt động thì nơi đây đã chứng kiến một sự gia tăng nhiều lần giá trị đất trong khu An Phú An Khánh (có giá từ giá khoảng 15 triệu/m2 vào năm 2006, và hiện nay đã lên khoảng 85 triệu/m2, tức là tăng gấp gần 6 lần trong vòng 10 năm).
Nếu quan tâm đến dự án nhà phố Merita, và muốn cập nhật thông tin chi tiết về dự án. Quý khách hàng vui lòng liên hệ trực tiếp đến chúng tôi để được cung cấp thông tin mới nhất và chuẩn xác nhất.
PHÒNG KINH DOANH DỰ ÁN NHÀ PHỐ MERITA KHANG ĐIỀN: 0915.916.915
Đăng ký nhận thông tin và bảng giá chi tiết dự án
==> Tìm hiểu thêm về đất nền dự án quận 9

